Alte Rabenstrasse

WOHNUNGSBAU HAMBURG

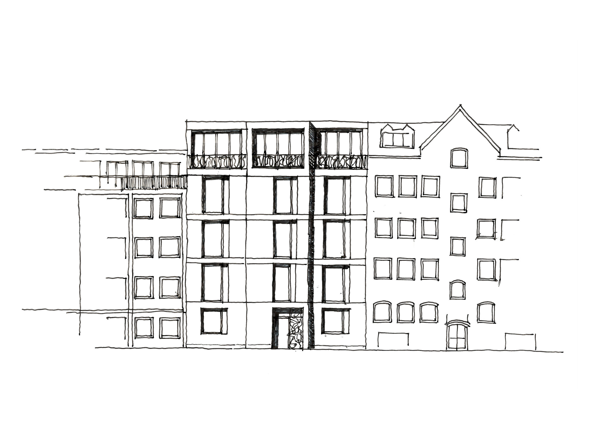
In der Alten Rabenstraße 3 nahe der Hamburger Außenalster entsteht ein neues, fünf Geschosse umfassendes Gebäude mit fünf Wohneinheiten. Das Grundstück ist in eine gewachsene Stadtstruktur eingebettet und bringt dank der ausgezeichneten Infrastruktur und der Lage zwischen Alster und der als Wohnquartier beliebten Uni-Gegend Arbeiten und Leben optimal in Einklang. Kurze Wege und die Nähe zu Wasser und Grün prägen den Standort.

Der neue Baukörper nimmt die Raumkanten der Nachbargebäude in seiner neuen Kubatur auf und ermöglicht durch die Staffelung des Dachgeschosses auf der Nord- und Südseite großzügige Flächen für Dachterrassen und Dachbegrünung. Er teilt die Straßenfront durch Vor- und Rücksprünge in drei Teile. Die beiden äußeren Fassadenteile führen die jeweilige Fassadenlinie der Nachbargebäude fort, wodurch ein harmonischer Übergang im Straßenraum entsteht.

Pulverbeschichtete, bronzefarbene Metallgeländer akzentuieren die Fassade im Bereich des Risaliten im Staffelgeschoss auf der Nordseite sowie an den Balkonen, Dachterrassen und Öffnungsflügeln auf der Südseite. Die klar gestaltete Fassade mit großformatigen, vorwiegend bodentiefen Fensterflächen und hellem Klinker, verleiht dem Baukörper eine monolithische Präsenz und lässt ihn zum Blickfang werden.

Projekt
Neubau
Bauherr
Bauplan Nord
BGF
1.300 m²
Fertigstellung
2021
Leistungsphasen
1 - 5