AppLike 2 AdA 1

APPLIKE BÜROAUSBAU AdA1

Die Unternehmensgruppe applike in Hamburg hat seit ihrer Gründung 2015 ein rasantes Wachstum erlebt und sich zu einer der zehn größten App-Plattformen weltweit positioniert. Die enorm schnelle Personalsteigerung bedingte neue Büroflächen für die mittlerweile rund 300 Mitarbeitenden. Für diese neuen Flächen „An der Alster 1“ wünschte sich die Unternehmensgruppe applike eine eher „rough“ wirkende Innenarchitektur, die viel Raum für Begegnungen bieten und den international jungen Mitarbeitern einen identitätsstiftenden, familiären Charakter schaffen sowie die Grundlinien unseres vorherigen Büroausbaus am Hauptsitz übernehmen sollten.

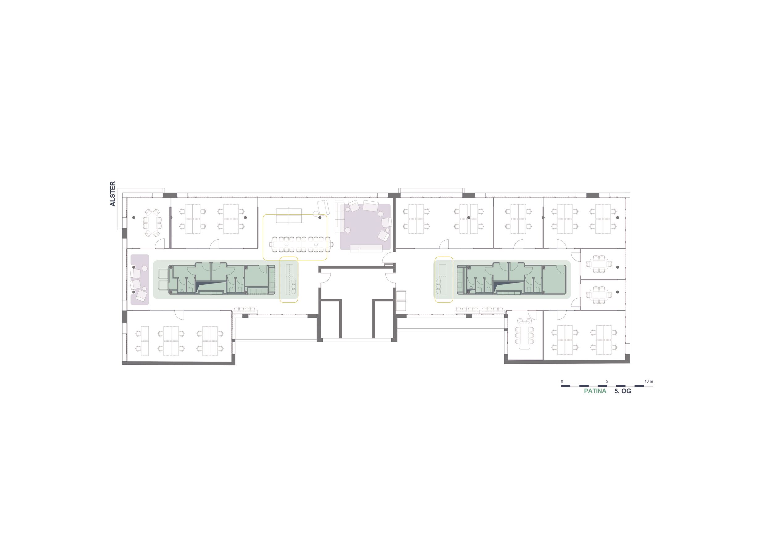
Beizubehalten wurden die als „Kreativgaragen“ bezeichneten hellen, puristischen Arbeitsräume, die ein ungestörtes Arbeiten für 6-8 Personen ermöglichen, und hier wie dort entlang der Fassade angeordnet sind.
Ein weiteres Augenmerk des Konzeptes lag auf den innenliegenden Funktionskernen sowie attraktiven Begegnungsflächen („Kreativwerkstatt“), die einheitlich monochrom in den von BAID entwickelten, drei Farbwelten eingefärbt das Erscheinungsbild der drei Geschosse prägen und Orientierung bieten. Der zentrale Entwurfsgedanke dieser „Kreativwerkstatt“ findet Entsprechung in den drei Farbwelten, „Patina“ „Petrol“ und „Oxid“, die unterschiedlichen Werkstätten und Verarbeitungsformen der Industrie zuzuordnen sind. Diese Farben ziehen sich einheitlich über sämtliche Gestaltungselemente vom Sanitärbereich bis zur Teeküche über die Wände bis hin zum Türgriff und einige Produkte wurden extra für das Projekt in diesen drei Tönen hergestellt. Dabei wurde sehr umweltschonend mit recycelten Materialien gearbeitet und sogar die großflächigen Bestands-Glastrennwände ausgebaut, vor Ort gelagert und wiederverwendet.

Die drei Etagen mit jeweils um die 800 Quadratmeter Fläche verfügen über eine ausgewogene Mischung aus Arbeits- und Rückzugszonen für die Mitarbeiter. Neben den weißen, lichtdurchfluteten, beruhigten Bereichen für konzentriertes Arbeiten, den „Kreativgaragen“, sind große, farbig markierte, anregende Bereiche dem intensiven Austausch gewidmet: Die Loungeflächen sind jeweils an den Kreuzungspunkten, Eingangsbereichen und Funktionskernen zusammengefasst angeordnet. Teeküche, Loungeflächen und Essbereich für gemeinsame Mahlzeiten oder Feiern sind offen, großzügig und „ehrlich und ruppig“ gestaltet. Dem Werkstattcharakter entsprechen in der Materialität die „Werkstattfarben“, Petrol, Patina und Oxid, Stahlrahmen, Riffelglas und unbehandelte Holzoberflächen. Tresen, Esstische und Tribünen der Loungebereiche wurden eigens von BAID für den Ausbau entworfen und von einer Tischlerei angefertigt. Ess- und Loungebereiche sind von Lichtringen überfangen, die einander überlagern und dadurch die einzelnen Bereiche zusammenfassen.

Projekt
Büroausbau appLike Group
Bauherr
applike Group GmbH
BGF
2.400 m²
Leistungsphase
1 - 9

OXID

PETROL

PATINA