Burchardtplatz

Neugestaltung des Burchardplatzes in Hamburg

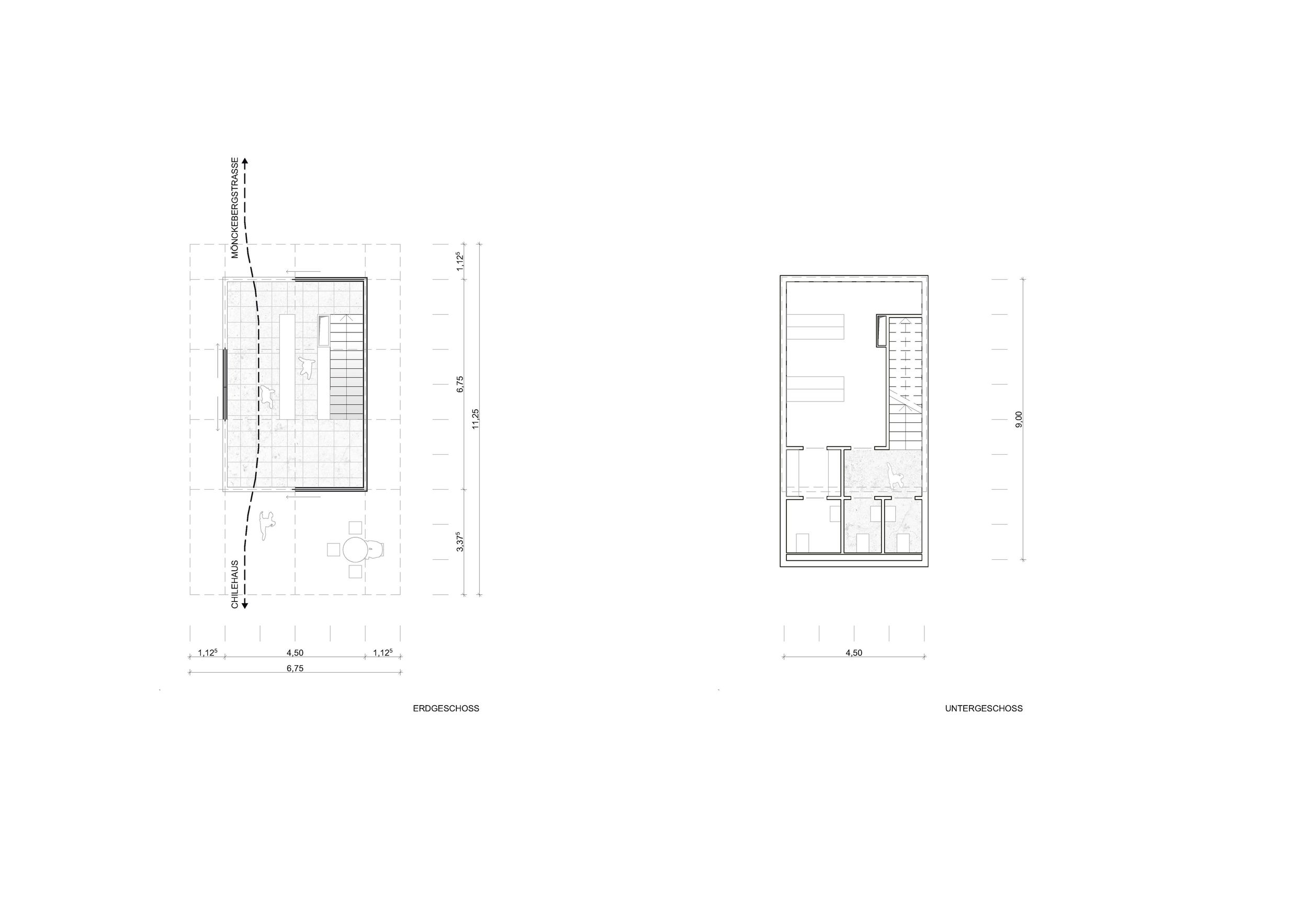
Wir freuen uns, mit der Gestaltung des Pavillons zum Erfolg von WES Landschafts Architektur zur Neugestaltung des Burchardtplatz beigetragen zu haben.Der Burchardtplatz bietet mit seinem stark reduzierten Ansatz die ideale Plattform für zahlreiche Nutzungskonzepte, z.B. als Marktbereich, für Festivals und Gastronomie, die auf dem Glas- und transparenten Pavillon basiert.

Wettbewerb
1. Rang mit WES LandschaftsArchitektur Hamburg