Deichtorhallen Kasematten

HAMBURG

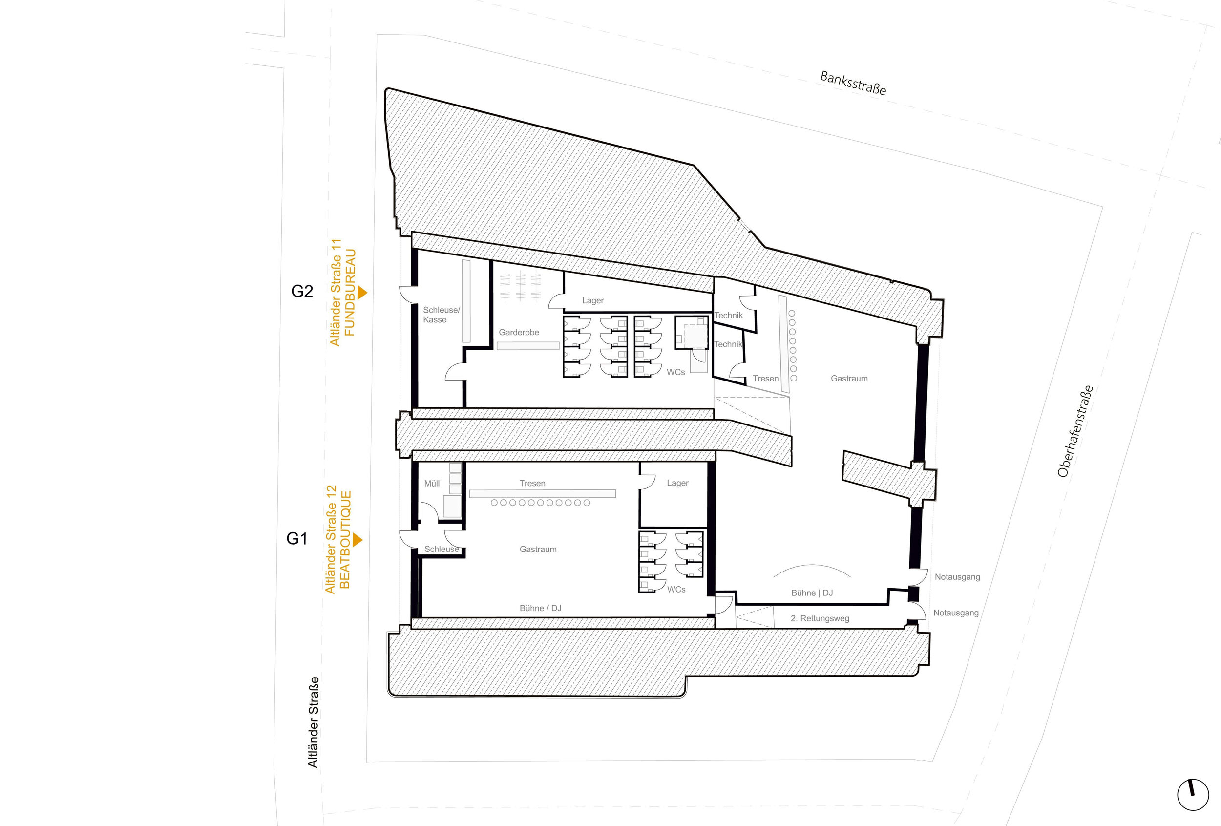
Die Kasematten an den Deichtorhallen wurden auf der Basis unserer Planung und nach umfangreichen Sanierungsarbeiten durch die Sprinkenhof GmbH zum Interimsstandort für die Szene-Clubs Beat Boutique und Fundbureau. Diese mussten ihre angestammte Heimat im Schanzenviertel infolge des Neubaus der Sternbrücke verlassen. Die roughe Industriearchitektur der historischen Bahngewölbe bietet den Clubs eine neue und angemessene Heimat - und der Stadt Hamburg einen neuen, lebendigen Kulturort.

Das Grundstück, direkt angrenzend an die bekannten Deichtorhallen, umfasst ca. 1.000 m². Die beiden Nutzungseinheiten haben eine Nutzungsfläche von knapp 600 m².

Im Gegensatz zu dem Bestandsrecht an den alten Standorten musste der Ausbau der Kasematten alle aktuellen Anforderungen an eine moderne Veranstaltungsstätte einhalten. Das betrifft alle energetischen und bauphysikalischen Vorschriften. Daraus resultierend wurde eine moderne Klimatechnik notwendig, die unter Einbeziehung von drei Wärmepumpen die Räume heizt, kühlt und belüftet. Darüber hinaus waren Voraussetzungen zu schaffen, die den Anforderungen an die geforderte Barrierefreiheit gerecht werden. Die begrenzenden Wände müssen den akustischen Herausforderungen eines Musikclubs entsprechen und die Emissionsanforderungen sicherstellen.

Authentisch für das der Umgebung entsprechende Erscheinungsbild wurde die sichtbare Fassade der beiden Clubs durch die Künstler Bobbie Serrano, Bona Berlin und Paul Manzey gestaltet.

Projekt
Umnutzung
Bauherr
Sprinkenhof GmbH
Baubeginn
Februar 2024
Fertigstellung
August 2024
Leistungsphasen
1-8
Nutzungsfläche
ca. 600 m²