Hohe Bleichen

WETTBEWERB, HAMBURG

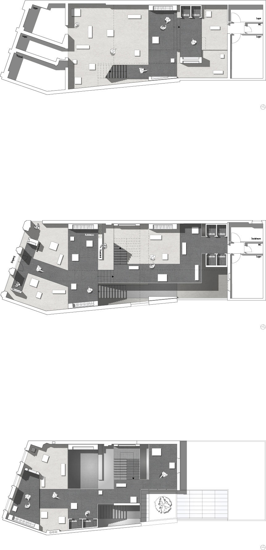
Die Hohen Bleichen befinden sich zentral in der Hamburger Innenstadt in unmittelbarer Nähe zum Jungfernstieg und zur Binnenalster. Dieses Quartier ist geprägt von hochwertigen Ladenlokalen und Büros. Das bestehende Geschäft sollte erneuert bzw. ausgebaut werden. Der außen liegende Hof sollte mittels einer Verglasung in die neue Nutzung integriert und somit ein Flächenzuwachs geschaffen werden. Die 2 entwickelten Konzepte „slice“ und „loop“ bespielen das Ladengeschäft jeweils auf 3 Ebenen. Deckendurchbrüche und vertikale Erschließungszonen ermöglichen dem Besucher spannende Blickbeziehungen zwischen den verschieden Geschossen. Beide Konzepte sind für den Verkauf von Bekleidung ausgelegt, jedoch in unterschiedlichen Preiskategorien. Mit den 2 vorgestellten Konzepten wurden dem Auslober verschiedene Erweiterungs- und Nutzungs-möglichkeiten für die Immobilie in bester Lage aufgezeigt.
Wettbewerb 2014
Auslober Hohe Bleichen GbR, Hamburg

Projekt
Shopausbau
Wettbewerb
2014
Auslober
Hohe Bleichen GbR, Hamburg