THE GRID

FIRMENZENTRALE DB SCHENKER, ESSEN

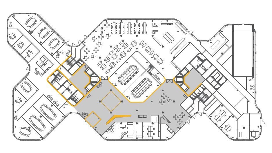
Das Thema „Vernetzung“ in der Umsetzung mit industriell anmutenden Materialien bzw. verfremdeten Industriebauteilen war Grundlage für das Gestaltungskonzept des Betriebsrestaurants im Neubau der DB Schenker Deutschlandzentrale. Mobile Raumteiler aus Spanngurten erzeugen verschiebbare Raumstrukturen. Ineinander fließende Funktionsbereiche werden durch Linien im Holzfußboden und die sich wechselnde Verlegerichtung zoniert. Diese Linien sind als Analogien zu den Transportwegen zu sehen. Hochtische mit Hockern, sowie vierer und sechser Tische bieten eine hohe Vielfalt an Sitzmöglichkeiten und Flexibilität. Plexiglaswürfel mit einer Hülle aus Drahtgeflecht dienen als Deckenleuchten. Ein Ausgabetresen in Metallstrukturoptik, ein Rückbuffet aus grauem Corean, sowie offene Regalsysteme mit Transportkisten als Schränke für die Tablettablage runden das industriell anmutende Gestaltungskonzept harmonisch ab.

Wettbewerb
2015, 1. Rang
Auslober
DB Gastronomie GmbH
Leistungsphasen
1 - 9